Stanovanje 3S za prodajo, Split, 1 150 000 €

Stanovanje, 175 m2, Prodaja, Split - Žnjan

Split, Žnjan, novogradnja, posredujemo pri prodaji pet luksuzno urejenih stanovanj v manjši stanovanjski stavbi z razgledom na morje.

Stavba se ponaša z moderno arhitekturo in visoko energetsko učinkovitostjo, ob upoštevanju sodobnih gradbenih standardov (protipožarna protivlomna vrata, kakovostni PVC okenski okvirji z mrežami proti komarjem, električne rolete, talno ogrevanje, kakovostna keramika in parket ...) ter se nahaja v mirnem delu Žnjana, približno 300 m od morja in novo urejene sprehajalne poti s čudovitimi prodnatimi plažami približno 1 km stran. V bližini so vsi potrebni življenjski objekti.



Omemba stanovanjske stavbe vključuje:

Klet: garažni prostor s šestimi parkirnimi mesti in shrambami.

Pritličje: stanovanje S-1, orientacija J-Z, 1 prostor, 59 m2, = 396.700 € z vštetim parkirnim mestom v garaži (25.000 €).

stanovanje S-2, orientacija J-I, 1 prostor, 58,79 m2, = 395.377 € z vštetim parkirnim mestom v garaži (25.000 €).

Prvo nadstropje: stanovanje S-3, J-I-S-Z, 3 prostori, 2 kopalnici, 125,43 m2 = 840.000 € z vključenim parkirnim mestom v garaži (25.000 €).

Drugo nadstropje: stanovanje S-4, orientacija J-I, 1 prostor, 54,69 m2 = 391.423 € z vštetim parkirnim mestom v garaži (25.000 €).

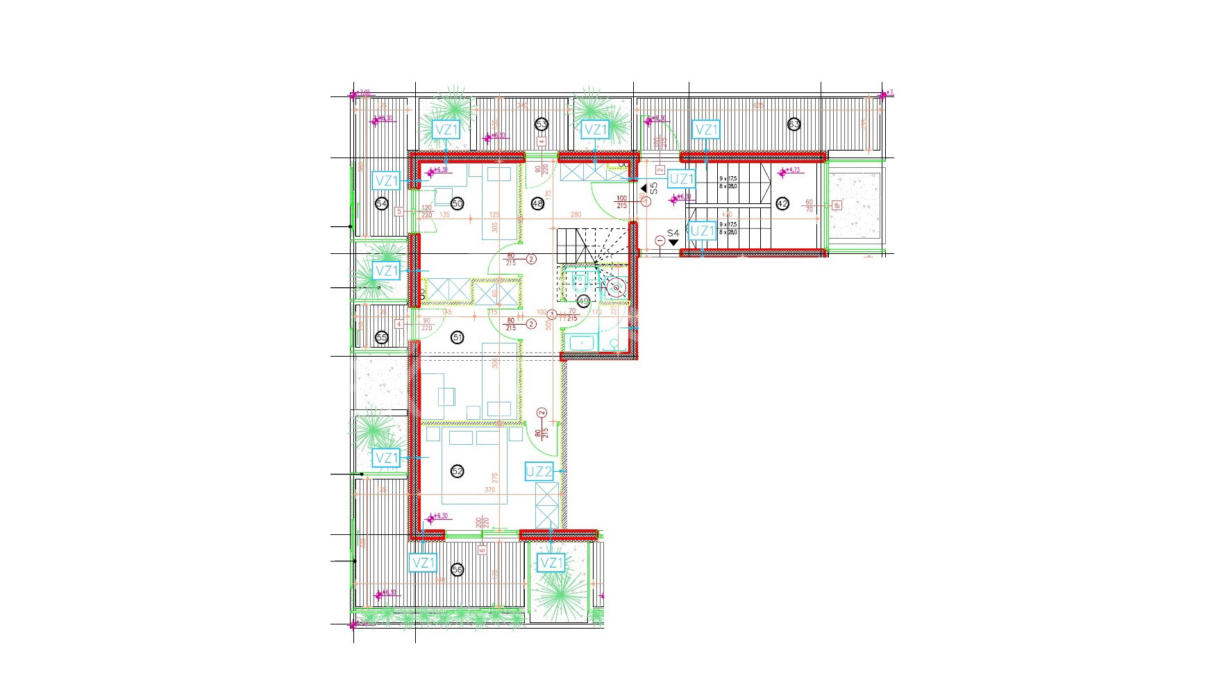
stanovanje S-5, orientacija J-Z-S, 3 prostori v prvem nadstropju s kopalnico, v nadzidku prostorna kuhinja, dnevna soba in kopalnica ter prostorna terasa, skupaj 175 m2, = 1.050.000 €, v ceni vključeni tudi dve parkirni mesti v garaži ter shramba v kleti stavbe.



Omemba stanovanjska stavba nudi popolno kombinacijo udobja in zasebnosti, idealno tako za kakovostno družinsko življenje kot tudi kot investicija za turistični najem.



Predviden zaključek gradnje je začetek leta 2027.





Strokovna ekipa Plexus nepremičnine vas vodi od vašega klica do vselitve v vaš dom, pokličite nas z zaupanjem.





Osnovni podatki

  • Šifra stavbe2025-Znjan3-S5-ToB
  • Prodajna cena1 150 000 € (8 664 675 kn)
  • LokacijaSplit, Žnjan (21000)
  • Kvadratura175,00 m2
  • Tip stanovanja3S
  • Energetski razredV gradnji
  • Število prodaje3
  • Število kopalnic2
  • Nadstropje2
  • Število etažDvoetažni
  • Nadstropij v stavbi3
  • Vrsta stavbeStanovanjski
  • Leto izdelave2026
  • Oddaljenost od morja300 m
  • Število parkirnih mest2

Različne lastnosti

  • Balkon
  • PVC
  • Pogled na morje

Ogrevanje

  • Elektrika
  • Klima

Inštalacije

  • Elektrika
  • Voda
  • Kanalizacija
  • DSL/Internet
  • DSL/Internet

Stanje stavbe

  • Novogradnja

Orijentacija v stavbi

  • Jug
  • Vzhod
  • Zahod
  • Sever

Parkirni prostor

  • Garaža

V bližini

  • Jjavna plaža

Nepremičnina na zemljevidu

Kontakt zastopnika

Denis Bašić
Ured Split
  • Ured Split
  • 0913210035
  • ured.split1@plexusnekretnine.hr
Ta spletna stran zapusti "piškotke" v računalniku za namene navigacije vsebine in anonimne zbirke statističnih podatkov o uporabi. Z uporabo te spletne strani potrjujete, da se strinjate s tem.