Stan 2S za prodaju, Split, 425 000 €

Prodajemo dvosoban stan (56M2) u kamenoj kući u centru grada na prvom katu sa pripadajućom garsonijerom (10m2) isključivo za stanovanje ili godišnji najam

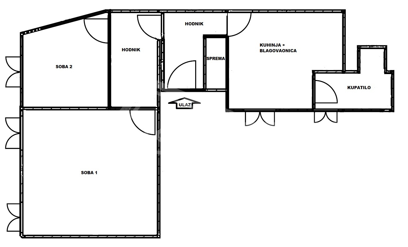
Na prodaju se nudi stan površine 56 m2, smješten na prvom katu (od četiri) kamene kuće u samom srcu Splita, Grad. Ova nekretnina predstavlja izvrsnu priliku za one koji traže stan u atraktivnom dijelu grada, s naglaskom na kvalitetnu lokaciju koja nudi brojne prednosti.Stan je useljiv, ugrađena je PVC stolarija ali stan zahtijeva renovaciju. razmještaj prostorija možete pogledati u tlocrtu.

Stan se sastoji od dvije spavaće sobe, što ga čini pogodnim za različite potrebe, bilo da se radi o obiteljskom životu ili investiciji. Orijentacija na istok omogućuje obilje prirodnog svjetla tijekom jutarnjih sati, stvarajući ugodan ambijent za boravak.

Stanu pripada uređena ostava od cca 10 m2 ( prema slikama od broja 14- 18) pretvorena u garsonijeru. Stanovanje u najstrožem centru grada (Bosanska ulica) pruža prednost koju znaju samo oni koji znaju da im ne treba automobil, parkirno mjesto.

Interijer uključuje kuhinju opremljenu aparatima, perilicu rublja, kadu, krevet i radni stol, što pruža dodatnu udobnost i funkcionalnost prostora. Stan je opremljen klimom, što omogućuje ugodnu temperaturu tijekom cijele godine.

Posebna vrijednost stana leži u njegovoj lokaciji unutar stare gradske jezgre Splita, gdje su dostupne sve važne gradske sadržaje, kulturne znamenitosti, restorani, trgovine i javni prijevoz. Ova pozicija omogućuje jednostavan pristup svim potrebnim uslugama i sadržajima, bez potrebe za korištenjem automobila.

Za turizam susjedi ne daju privolu te se stan prodaje isključivo za stanovanje ili godišnji najam.

Za sve dodatne informacije ili dogovor oko razgledavanja, slobodno se obratite. Ova nekretnina predstavlja izvrsnu priliku za ulaganje ili ugodan život u jednoj od najpoželjnijih splitskih lokacija.
Možda sebi niste mogli priuštiti život u središtui gradakad ste bili mlađi, ali ako volite Split i imate mogućnost živiti u samoj gradskoj jezgri - razmislite, nazovite i dogovorite razgled!



- - - - -

ZAMIJENITE SVOJU NEKRETNINU!

Tražite novi dom, ali nemate gdje ako prodate svoj?

Pomažemo zamijeniti vaš stan, kuću ili zemljište za nekretninu koja odgovara vašim željama i potrebama. Naši iskusni agenti pomoći će vam u cijelom procesu!
Kontaktirajte nas već danas!

Zamijenite svoju nekretninu i ostvarite svoj san!

- - - - -

Cijenjeni potencijalni kupci!

Razgled nekretnine moguć je isključivo uz potpis Ugovora o posredovanju, u svrhu zaštite imovine vlasnika nekretnine od posjeta neregistriranih osoba, a u skladu sa Zakonom o zaštiti podataka i Zakonom o posredovanju u prometu nekretnina.

Nađete li ovu nekretninu po nižoj cijeni u oglasniku ona vrijedi i kod nas!

----- agencijska provizija iznosi 2 % + PDV -----
(za zemljišta i poslovne prostore te stanove i kuće izvan Splita 3 % + PDV - minimalno 1.000 € + PDV)
----- za dugoročni najam / zakup jedan mjesečna rata najama + PDV -----

+++++++ PLEXUS NEKRETNINE +++++++

Ukoliko imate nekretninu za zamjenu, ispunite obrazac na sljedećem linku:
---
https://realestateplexus.com/hr/pages/client-area#sell
--- (link kopirajte u pretraživač)

Osnovne informacije

  • Šifra objekta1804Erp
  • Prodajna cijena425 000 € (3 202 163 kn)
  • LokacijaSplit, Grad (21000)
  • Kvadratura56,00 m2
  • Tip stana2S
  • Energetski razredU izradi
  • Broj soba2
  • Broj spavaćih soba2
  • Broj kupaonica1
  • Kat1
  • Broj etažaJednoetažni
  • Ukupno katova2
  • Vrsta zgradeStambena
  • Godina renovacije1998

Razna svojstva

  • PVC stolarija

Instalacije

  • Struja
  • Voda
  • Kanalizacija

Orijentacija

  • Istok

Dokumentacija

  • Građevinska dozvola

Prikaz nekretnine na karti

Kontaktiraj agenta

Ervin Poljaković
Ova stranica ostavlja "kolačiće" na Vašem kompjutoru za potrebe navigacije i anonimizirane statistike pristupa. Korištenjem ove stranice prihvaćate i potvrđujete ove "kolačiće".