Građevinsko zemljište za prodaju, Omiš, 90 000 €

SNIŽENO! Omiš-Gata-Čišla: Građevinsko zemljište s projektom

SNIŽENO! ZEMLJIŠTE S GRAĐEVINSKOM DOZVOLOM



Građevinsko zemljište površine 783 m2 smješteno je u Omišu, naselje Čisla. Parcela se nalazi na prodaju i predstavlja izvanrednu priliku za ulaganje.

Zemljište je građevinske namjene, što omogućuje izgradnju objekta u skladu s važećim urbanističkim planom. Površina parcele pruža dovoljno prostora za različite projekte, čime se otvara širok spektar mogućnosti za buduće vlasnike.

Lokacija u Omišu, u naselju Čisla, pruža prednosti blizine grada i svih njegovih sadržaja, istovremeno nudeći mirnije okruženje. Ova kombinacija čini parcelu atraktivnom za one koji traže ravnotežu između urbanog života i privatnosti. Od centra Omiša je udaljeno 7-8 km, a od Splita 30.

S obzirom na građevinsku namjenu, zemljište je pogodno za izgradnju stambenog objekta. Lokacija omogućuje i druge mogućnosti u skladu s propisima i potrebama kupca.

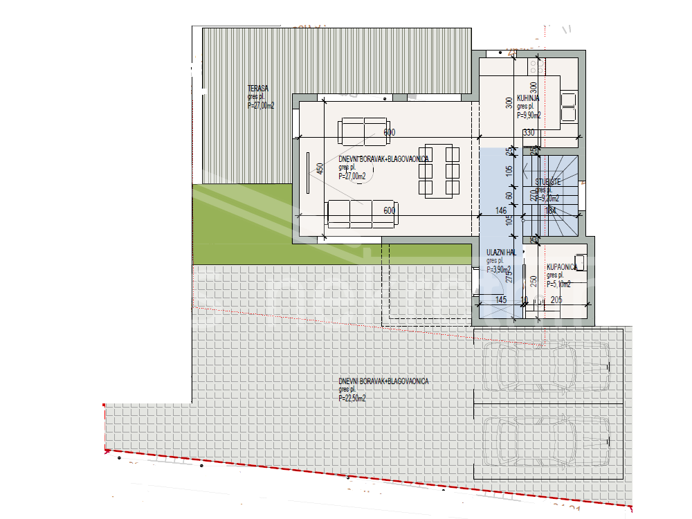
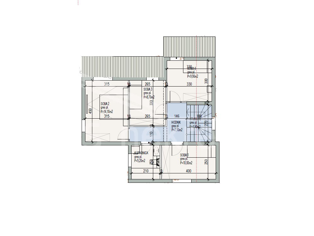
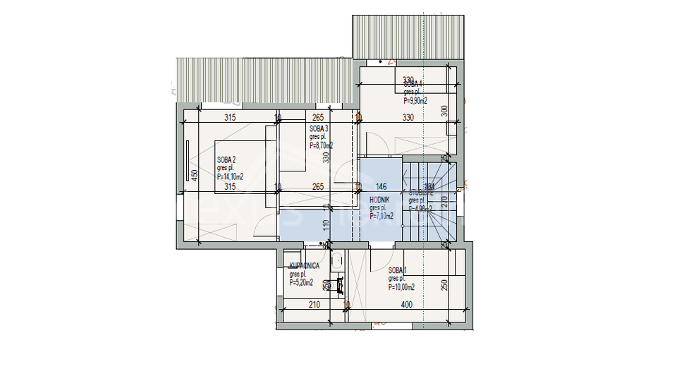
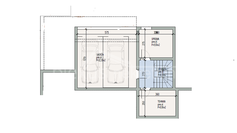
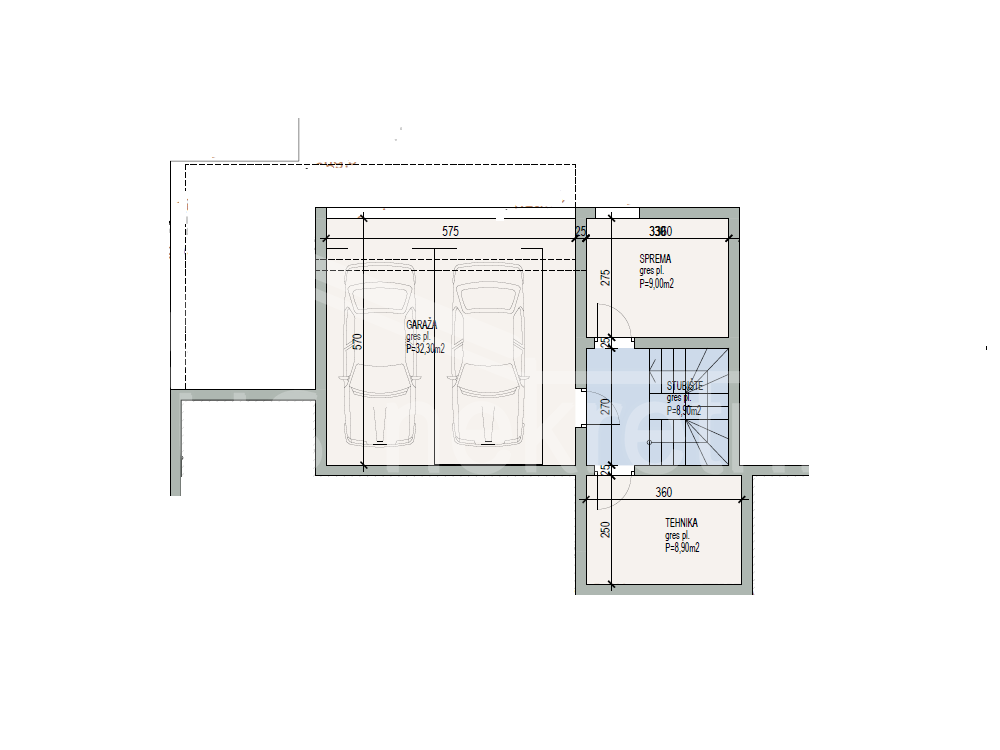
Zemljište je upisano kao građevinsko, što olakšava proces planiranja i razvoja u skladu s odgovarajućim regulativama. Detaljne informacije o potrebnim dozvolama i pravima mogu se dobiti uvidom u važeću dokumentaciju. Postoji važeća građevinska dozvola za gradnju obiteljske kuća katnosti E=Pr+K (prizemlje i kat), pod ravnim neprohodnim krovom, s jednom stambenom jedinicom, građevinske (bruto) površine 163,00 m2 i plaćeni su komunalni doprinosi.

Kupac dobija i kompletnu projektnu dokumentaciju tako da može odmah krenuti u izgradnju kuće.

Pozivamo vas da iskoristite ovu priliku i istražite potencijal koji ovo zemljište nudi, bilo kao investiciju ili kao priliku za realizaciju vlastitih projekata na atraktivnoj lokaciji u Omišu.



- - - - -

Cijenjeni potencijalni kupci!

Razgled nekretnine moguć je isključivo uz potpis Ugovora o posredovanju, u svrhu zaštite imovine vlasnika nekretnine od posjeta neregistriranih osoba, a u skladu sa Zakonom o zaštiti podataka i Zakonom o posredovanju u prometu nekretnina.

Nađete li ovu nekretninu po nižoj cijeni u oglasniku ona vrijedi i kod nas!

----- agencijska provizija iznosi 2 % + PDV -----
(za zemljišta i poslovne prostore te stanove i kuće izvan Splita 3 % + PDV - minimalno 1.000 € + PDV)
----- za dugoročni najam / zakup jedan mjesečna rata najama + PDV -----

+++++++ PLEXUS NEKRETNINE +++++++

Ukoliko imate nekretninu za zamjenu, ispunite obrazac na sljedećem linku:
---
https://realestateplexus.com/hr/pages/client-area#sell
--- (link kopirajte u pretraživač)

Osnovne informacije

  • Šifra objekta2026-GZ.03.12-NeM
  • Prodajna cijena90 000 € (678 105 kn)
  • LokacijaOmiš, Čisla (21310)
  • Kvadratura783,00 m2
  • Vrsta zemljištaGrađevinsko zemljište

Dokumentacija

  • Građevinska dozvola

Prikaz nekretnine na karti

Kontaktiraj agenta

Nenad Matošević
Ova stranica ostavlja "kolačiće" na Vašem kompjutoru za potrebe navigacije i anonimizirane statistike pristupa. Korištenjem ove stranice prihvaćate i potvrđujete ove "kolačiće".